近年来,我国电力、通信、能源、交通等行业规模不断扩大,对电线电缆的需求迅速增长,中国电线电缆行业已步入飞跃发展期,产量主要集中在东部和中部地区。
江苏宜兴、安徽无为、河北宁晋、浙江临安、福建南平等地已形成成熟的电缆产业集群。当前我国电线电缆企业规模达近万家,其中97%是中小企业,设备平均利用率在30%-40%,远远低于国际上设备利用率70%以上的水平。
顺泰国际 由于行业门槛低、低水平重复建设严重,行业还存在诸如产业集中度低、行业产能过剩及质量良莠不齐等许多问题。另外,电缆产品制造过程对人类生态环境的污染问题也将提到日程上来
适用行业:电缆行业 | 方案额定出力:16吨
顺泰国际 电线电缆有铜和铝这两种线芯材质,是通过拉制、绞制、包覆三种工艺来制作完成的,型号规格越复杂,重复性越高。其中包括混炼、挤出、硫化三个过程,在制造电缆过程中对蒸汽需求是必不可少的,而且对温度的控制也相当严格。

注:电缆生产工艺流程图
顺泰国际 中正锅炉服务过全国多家电线电缆生产企业,有着丰富的该行业项目经验。据了解,在电缆挤出过程中,温度过高则容易烧焦,温度过低则胶化不易;在硫化过程中,温度太低容易产生气泡,温度太高容易产生气孔。
而且每一个过程的温度和压力要求不同,所以温度和压力的控制要精准可调节。这就使得电缆生产对蒸汽系统的要求非常之高。
顺泰国际 通过将中正锅炉的客户案例进行统计分析,对于电线电缆生产企业而言,对蒸汽锅炉控制系统的高要求和环保意识的加强,WNS系列、SZS系列冷凝式燃气锅炉的应用频率较高,SZL系列、DZL系列燃煤锅炉应用相对较少。
如某电线电缆企业年产量达6亿米,中正锅炉的技术人员根据生产要求和环保标准为其推荐了10吨和6吨的SZS系列燃气锅炉各一台用于生产,不仅运行机械化和控制自动化程度比较高,对不同燃料具有较强的适应性,节能环保效果更佳。
1.设备节能环保效果好
与燃煤锅炉相比,使用的燃料更清洁高效,节能减排效果更好,能够满足环保要求。
2.燃料具有较强的适应性
顺泰国际 中正锅炉研发的WNS系列、SZS系列蒸汽锅炉选用的炉胆尺寸大,为燃料的充分燃烧提供条件,因此,对不同燃料具有较强的适应性。

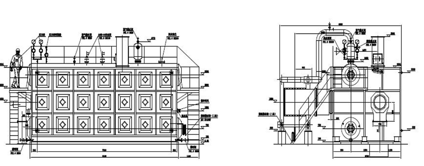
注:SZS蒸汽锅炉系统图
3.设备自动化程度较高,操作简便
顺泰国际 先进的蒸汽锅炉全自动控制器,全中文液晶屏,人机界面,用户只需轻松设定,锅炉即能按用户要求启停、负荷调节、自动给水等全自动运作。